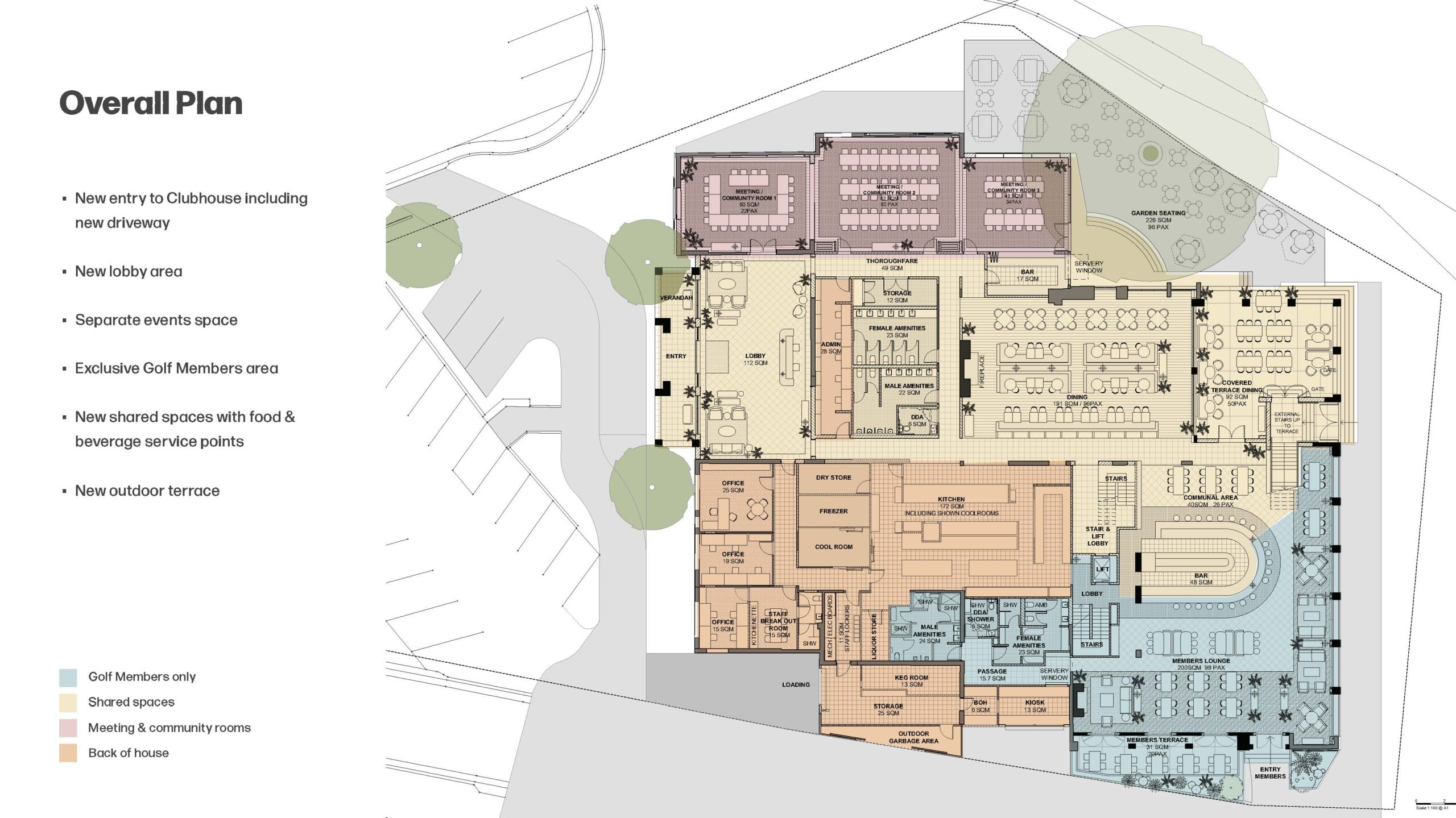
23011_Long Reef Golf Club_Concept Presentation_Abbreviated version_240708 (1)_Page_3 August 8, 2024Full resolution (2560 × 1439) ← Previous Next →